download résumé (pdf - 82 ko)
download long résumé (pdf - 98 ko)
download portfolio, january 2010 (pdf - 22 mo)
download long résumé (pdf - 98 ko)
download portfolio, january 2010 (pdf - 22 mo)
Courtyard - Salem, Massachusetts (fall 2003)
First semester core landscape studio project (Harvard, GSD)

The sensation of the proximate sea is echoed in a channel
of water, which ebbs and flows through the center of
the courtyard. The experience of wind is announced in
the excited rustling of the leaves of Populus tremuloides
as well as through the corresponding motion of meadow
grasses. The experience of the seasons is heightened
through the changing plant palette.
This scheme emphasizes the experience of natural phenomena present on site and aims to bring awareness of such phenomena through individuals' interactions with the space.

The sensation of the proximate sea is echoed in a channel
of water, which ebbs and flows through the center of
the courtyard. The experience of wind is announced in
the excited rustling of the leaves of Populus tremuloides
as well as through the corresponding motion of meadow
grasses. The experience of the seasons is heightened
through the changing plant palette.
This scheme emphasizes the experience of natural phenomena present on site and aims to bring awareness of such phenomena through individuals' interactions with the space.
North Point Park - Cambridge, Massachusetts (summer 2004)
Internship - MVVA, Cambridge, Massachusetts
Project team
Chris Matthews (Project Manager), Inge Daniels, Matthew Gordy, Lauren Lynn, Erik Prince
The park's design is based on creative environmental principles.
It is organized by a series of planted swales that capture, cleanse,
and transport storm water from the surrounding buildings and
roads, allowing a reduction in underground site infrastructure and
exposing park users to aspects of neighborhood ecology. The park
is part of a larger green network intended to connect the park and
the neighborhood with the broader city.
Project team
Chris Matthews (Project Manager), Inge Daniels, Matthew Gordy, Lauren Lynn, Erik Prince
The park's design is based on creative environmental principles.
It is organized by a series of planted swales that capture, cleanse,
and transport storm water from the surrounding buildings and
roads, allowing a reduction in underground site infrastructure and
exposing park users to aspects of neighborhood ecology. The park
is part of a larger green network intended to connect the park and
the neighborhood with the broader city.
Immigration Center - Long Island, Boston, Massachusetts (fall 2004)
Third semester core landscape studio project (Harvard, GSD)
Project team
Charlotte Barrows, Lauren Lynn, Yoshiki Mishima, Jennifer Toy

The team's desire was to create a dense, mixed-use immigration
center core while conserving the existing pine barren and salt
marsh areas on site. The team took advantage of specific areas
on site to locate new public and private parks. Additionally, they
proposed to expand the existing organic garden into a full fledged
working farm providing a further means through which new
immigrants could passively and actively engage the land.

Project team
Charlotte Barrows, Lauren Lynn, Yoshiki Mishima, Jennifer Toy

The team's desire was to create a dense, mixed-use immigration
center core while conserving the existing pine barren and salt
marsh areas on site. The team took advantage of specific areas
on site to locate new public and private parks. Additionally, they
proposed to expand the existing organic garden into a full fledged
working farm providing a further means through which new
immigrants could passively and actively engage the land.
| Throughout the project, the team explored a variety of representational techniques. Analogue mediums including paper collage, pastel, and watercolor were combined with digital technologies in order to produce final drawings. | ![]() |
![]() |
![]() |
![]() |
![]() |
Scenari Futuri per il Parco Roncajette e la Zona Industriale - Padova, Italy (fall 2005)
Fifth semester option studio project (Harvard, GSD)
Project team
Ashley Bastow, Pippa Brashear, Lauren Lynn

This project is part of a larger study of the future of the Parco Roncajette, the industrial zone ZIP, and the landscape of the eastern part of the region of Padova. It is the product of a semester of collaborative work, and one of three alternative scenarios that was presented to the public and the municipal and business leaders of Padova in January, 2006.
This particular alternative develops the Roncajette area as an accessible, recreational, water-focused park, while revitalizing and reinventing ZIP's role as a leader in industrial research and environmentally sustainable development in Padova and the Veneto region.


Project team
Ashley Bastow, Pippa Brashear, Lauren Lynn

This project is part of a larger study of the future of the Parco Roncajette, the industrial zone ZIP, and the landscape of the eastern part of the region of Padova. It is the product of a semester of collaborative work, and one of three alternative scenarios that was presented to the public and the municipal and business leaders of Padova in January, 2006.
This particular alternative develops the Roncajette area as an accessible, recreational, water-focused park, while revitalizing and reinventing ZIP's role as a leader in industrial research and environmentally sustainable development in Padova and the Veneto region.


|
Before / after |
|
Before / after |
|
Before / after |
Cincinnati Central Riverfront Park - Cincinnati, Ohio (summer 2006)
Internship - Sasaki Associates, Water Town, Massachusetts
Project team
Alistair McIntosh (Project Manager), Mark Dawson, Susannah Ross, Lauren Lynn, Lei Chang

Project team
Alistair McIntosh (Project Manager), Mark Dawson, Susannah Ross, Lauren Lynn, Lei Chang
![]() |
The 40-acre park aspires to reconnect the people
of Cincinnati to the river's edge. In addition to
incorporating the river into the park design, the theme
of water is present throughout the park in a variety of
forms including pools, cascades, and waterfalls. The
park possesses many different personalities, with activity
options as diverse as people's interests. My primary role
in the project was the construction of physical models
to be used in various public meetings. |

Royal Canal Linear Park - Dublin, Ireland (fall 2007)
Project assistant - Agence Ter
Project team
Olivier Philippe, Anne Portnoi (Project Manager), Lauren Lynn, Celine Guyot
Sited in the heart of Dublin's new dockland business center, the park provides a
natural breathing space where the idea of reversibility allows the project to adapt
to a constantly evolving urban environment. Rectangular in form, gardens are
placed in or out of the water; real or implied barges moored to structuring stone
lines which are the main circulation corridors. An interplay between two levels,
that of the water and that of the quays, is used throughout the site to create a new
perception of the space, overcoming the existing linear division and extending
park limits. The canal and its banks become one single vibrant expanse.

Project team
Olivier Philippe, Anne Portnoi (Project Manager), Lauren Lynn, Celine Guyot
Sited in the heart of Dublin's new dockland business center, the park provides a
natural breathing space where the idea of reversibility allows the project to adapt
to a constantly evolving urban environment. Rectangular in form, gardens are
placed in or out of the water; real or implied barges moored to structuring stone
lines which are the main circulation corridors. An interplay between two levels,
that of the water and that of the quays, is used throughout the site to create a new
perception of the space, overcoming the existing linear division and extending
park limits. The canal and its banks become one single vibrant expanse.
Eco-Quartier Restanque Arène - Montpellier, France (winter 2007)
Project manager - Agence Ter
Project team
Olivier Philippe, Lauren Lynn (Project Manager), Flore Baudelot
in collaboration with Atelier Nebout Architects

Located on a 150-hectare post-industrial site, this competition-winning proposal envisions a new community organized around the sustainable principles of legibility, walkability, and the collection, retention, and reuse of rainwater on site. A new urban park forms the weatern spine of the development - the summit of which is created from the earth excavated on site. From this new perspective, views which link the community to the historic center of Montpellier are enabled.

Project team
Olivier Philippe, Lauren Lynn (Project Manager), Flore Baudelot
in collaboration with Atelier Nebout Architects

Located on a 150-hectare post-industrial site, this competition-winning proposal envisions a new community organized around the sustainable principles of legibility, walkability, and the collection, retention, and reuse of rainwater on site. A new urban park forms the weatern spine of the development - the summit of which is created from the earth excavated on site. From this new perspective, views which link the community to the historic center of Montpellier are enabled.

French Pavilion - World Exposition 2010 - Shanghai, China (under construction)
Project manager - Agence Ter
Project team
Michel Hoessler, Lauren Lynn (Project Manager), Flore Baudelot, Isabelle Costy
in collaboration with JFA Architectures


The French national pavilion will be a prominent, innovative structure reflecting, as much in its form and composition as its content, the country's dynamism and art de vivre. From this point of view - and in keeping with the theme of Expo 2010 - it will stand as living proof of France's capacity to break new ground in the fields of sustainable development and cultural outreach. The garden of the French Pavilion for the World Exposition in Shanghai is a contemporary redefinition of the principles of the traditional French garden typology. Within this project, the garden parterre reinterprets the form of an electronic circuit. The parterre transforms when suspended into a vertical garden with a double facade - the facade facing outward towards the courtyard, uniformity, and the facade facing inwards towards the exposition, diversity.
Project team
Michel Hoessler, Lauren Lynn (Project Manager), Flore Baudelot, Isabelle Costy
in collaboration with JFA Architectures


The French national pavilion will be a prominent, innovative structure reflecting, as much in its form and composition as its content, the country's dynamism and art de vivre. From this point of view - and in keeping with the theme of Expo 2010 - it will stand as living proof of France's capacity to break new ground in the fields of sustainable development and cultural outreach. The garden of the French Pavilion for the World Exposition in Shanghai is a contemporary redefinition of the principles of the traditional French garden typology. Within this project, the garden parterre reinterprets the form of an electronic circuit. The parterre transforms when suspended into a vertical garden with a double facade - the facade facing outward towards the courtyard, uniformity, and the facade facing inwards towards the exposition, diversity.
Daming Palace National Heritage Park - Xi'an, China (winter 2009)
Project manager - Agence Ter
Project team
Michel Hoessler, Lauren Lynn (Project Manager), Flore Baudelot, Junmin Chu


Situated in the northeast of Xi'an of the Tang Dynasty, Daming Palace was first built in the year of 634 A.D.. It was destroyed by wars towards the end of the Tang Dynasty. During its existence of about 200 years, Daming Palace was the decision-making centre of the Tang Dynasty. As an independent city, the palace occupied an area of 3.2 square kilometers. Today the site is in process of becoming a UNESCO World Heritage Site. Thus, an important part of the project deals with the preservation of existing ruins on site and the revelation of the ancient footprints of other ruins currently hidden below the soil.
The park's design in based on the revelation of the ruins via two overlaid systems. The first system, the "chemin céleste," takes the form of a meandering circuit which links 9 buried ruin sites. The form of these ruins is made manifest through the design of specifically themed basins above each ruin. The second system is that of the axes - taking its inspiration from traditional French park and garden design theory. These grand axes link both physically and visually the site's most significant ruins.


Project team
Michel Hoessler, Lauren Lynn (Project Manager), Flore Baudelot, Junmin Chu


Situated in the northeast of Xi'an of the Tang Dynasty, Daming Palace was first built in the year of 634 A.D.. It was destroyed by wars towards the end of the Tang Dynasty. During its existence of about 200 years, Daming Palace was the decision-making centre of the Tang Dynasty. As an independent city, the palace occupied an area of 3.2 square kilometers. Today the site is in process of becoming a UNESCO World Heritage Site. Thus, an important part of the project deals with the preservation of existing ruins on site and the revelation of the ancient footprints of other ruins currently hidden below the soil.
The park's design in based on the revelation of the ruins via two overlaid systems. The first system, the "chemin céleste," takes the form of a meandering circuit which links 9 buried ruin sites. The form of these ruins is made manifest through the design of specifically themed basins above each ruin. The second system is that of the axes - taking its inspiration from traditional French park and garden design theory. These grand axes link both physically and visually the site's most significant ruins.


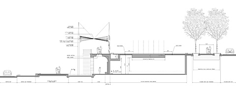
Parc Mermoz - Orly, France (construction spring 2010)
Project assistant - Agence Florence Mercier paysagiste
Project team
Florence Mercier, Sophie Gerin (Project Manager), Lauren Lynn

The Parc Mermoz (Mermoz Park), a 4.7 hectare park, in Orly, France is situated in between two neighborhoods, the Aviateurs and the Navigateurs, upon a site once slated for the passage of a highway.
The park is part of a greater urban renewal strategy in Orly, and it is intended to serve as an iconic link between the surrounding neighborhoods.
The park is composed of a series of multi-use spaces beginning with a more formally structured entry at the north to a more bucolic setting in the south of the park where subtle manipulations of the topography make reference to the countryside.
The spaces are connected by the prominent ‘canal fleurie’ - a canal of native flowers and grasses. Construction will begin in the spring of 2010.


Project team
Florence Mercier, Sophie Gerin (Project Manager), Lauren Lynn

The Parc Mermoz (Mermoz Park), a 4.7 hectare park, in Orly, France is situated in between two neighborhoods, the Aviateurs and the Navigateurs, upon a site once slated for the passage of a highway.
The park is part of a greater urban renewal strategy in Orly, and it is intended to serve as an iconic link between the surrounding neighborhoods.
The park is composed of a series of multi-use spaces beginning with a more formally structured entry at the north to a more bucolic setting in the south of the park where subtle manipulations of the topography make reference to the countryside.
The spaces are connected by the prominent ‘canal fleurie’ - a canal of native flowers and grasses. Construction will begin in the spring of 2010.


22, rue du département - 75018 paris - france
cellphone: +33 (0)6 88 95 70 60
email: llynn [ at ] post.harvard.edu
cellphone: +33 (0)6 88 95 70 60
email: llynn [ at ] post.harvard.edu






